Xây nhà cấp 4 diện tích 5×20 trọn gói 300 triệu có khả thi?
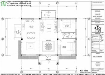
Ưu điểm của những căn nhà cấp 4 đó là có chi phí thiết kế và thi công rất rẻ. Tuy nhiên, mặt bằng 5×20 có diện tích khá lớn lên đến 100m2. Vậy xây...
Với 20 năm kinh nghiệm về lĩnh vực xây dựng nhà ở, nhà phố, biệt thự. Thành công qua nhiều dự án lớn nhỏ. Ngoài ra, Hiền Phạm còn là một trong những kiến trúc sư rất nổi tiếng tại Việt Nam.
Liên hệ: 1393 Quốc Lộ 50, xã Phong Phú, huyện Bình Chánh, TP HCM
Zalo / Hotline: 0979487378
Email: hienpham767676@gmail.com
Ưu điểm của những căn nhà cấp 4 đó là có chi phí thiết kế và thi công rất rẻ. Tuy nhiên, mặt bằng 5×20 có diện tích khá lớn lên đến 100m2. Vậy xây...
Hàng rào đẹp nhà cấp 4 được xem là một phần kiến trúc của ngôi nhà và được rất nhiều người tìm kiếm, tham khảo. Dưới đây là những mẫu hàng rào đẹp nhà cấp...
Những mẫu nhà cấp 4 chữ L mái tôn vốn đã rất quen thuộc tại Việt Nam, được nhiều bạn lựa chọn, đảm bảo đầy đủ công năng mà vẫn tiết kiệm chi phí. Tham...
(Xây dựng) – Trong thời gian tới, Bình Định sẽ tăng cường giám sát, phát hiện, xử lý các hành vi vi phạm về khai thác khoáng sản, bảo vệ môi trường tại các khu...
Mẫu nhà cấp 4 có ưu điểm lớn nhất đó là về chi phí thi công rẻ, thời gian hoàn thiện nhanh. Với hạn mức 100 triệu, 200 triệu, liệu bạn có bao giờ nghĩ...
Tại Việt Nam mẫu nhà cấp 4 là kiểu nhà khá phổ biến và không còn xa lạ đối. Ngày nay, nhu cầu thiết kế, trang trí nhà luôn được quan tâm và chú trọng...
Xu hướng thiết kế phòng khách tách biệt với phòng ăn đang được rất nhiều gia chủ ưa chuộng, lựa chọn. Để đảm bảo sự kín đáo cho các không gian này thì các gia...
Cuộc sống bận rộn khiến chúng ta xoay vòng với áp lực và những bộn bề cuộc sống, để khi về nhà ai nấy đều thèm cảm giác an yên và thư giãn. Sân vườn...
Màu sắc chủ đạo năm tới hướng đến sự thoải mái, linh hoạt và kết nối với thiên nhiên từ màu đen bí ẩn, xanh da trời thăng hoa, xanh ô lưu dịu đến màu...
(Xây dựng) - HĐND tỉnh Lào Cai vừa ban hành Nghị quyết 28/2023/NQ-HĐND về quy định khoản thu đóng góp từ khai thác khoáng sản trên địa bàn tỉnh. Nghị quyết có hiệu lực từ...
Mẫu nhà cấp 4, mẫu nhà cấp 4 3 phòng ngủ hiện đại chắc hẳn không còn xa lạ với tất cả mọi người, với tính năng ưu việt, không gian thoáng mát và hòa...
Mẫu nhà cấp 4 có gác lửng là kiểu nhà khá phổ biến tại Việt Nam, là đặc trưng nổi bật ở những nơi có diện tích tương đối nhỏ. Với xu thế thiết kế...
Nhà mái Thái là kiểu kiến trúc quen thuộc và được ưa chuộng tại Việt Nam. Sở hữu thiết kế mái độc đáo, đẹp mắt, kiểu nhà này đặc biệt phù hợp với những công...
(Xây dựng) - Được sự chỉ đạo và bảo trợ của Bộ Xây dựng và UBND Thành phố Hồ Chí Minh, Triển lãm Quốc tế Vietbuild Home 2023 với chủ đề Trang trí nội ngoại...
(Xây dựng) – Đây là một nội dung quan trọng trong Quyết định số 21/2023/QĐ-UBND ngày 8/12/2023 của UBND tỉnh Hưng Yên. Quyết định này có hiệu lực từ ngày 20/12/2023. Một dự án trên...
Nhà cấp 4 nông thôn 3 phòng ngủ là sự lựa chọn phù hợp với các gia đình trẻ, hộ gia đình ít thành viên. Kiến Trúc Vinh chia sẻ Top 5 nhà cấp 4...
Thay vì lựa chọn những kiểu nhà có thiết kế cầu kỳ, nhiều gia chủ lựa chọn mẫu nhà cấp 4 mái Thái đơn giản, tập trung vào nội thất để tạo không gian sống...
(Xây dựng) - Các Bộ, ngành, địa phương cần đẩy nhanh tiến độ triển khai dự án đầu tư công, xây dựng kết cấu hạ tầng theo kế hoạch được phê duyệt, từ đó tạo...
(Xây dựng) – Bộ Xây dựng vừa ban hành Quyết định số 1260/QĐ-BXD ngày 11/12/2023 về chỉ dẫn kỹ thuật tạm thời sử dụng bã thải thạch cao phospho làm lớp móng đường giao thông...
(Xây dựng) - Trong khi nguồn vật liệu khan hiếm, kéo theo tiến độ thực hiện nhiều dự án ở các địa phương trong cả nước gặp khó khăn, tỉnh Thái Nguyên đã quyết định...
Nhà cấp 4 nông thôn hiện nay không chỉ còn là những mẫu nhà đơn giản, thô sơ mà đã và đang được thiết kế theo nhiều phong cách khác nhau, phù hợp theo sở...
(Xây dựng) - Sau nhiều lần đối thoại với người dân, kiên trì tuyên truyền, giải thích về ý nghĩa, tầm quan trọng của dự án, lực lượng chức năng đã cắm mốc thành công...
Để gỡ khó cho thị trường vật liệu xây dựng, nhất là ximăng, Bộ Xây dựng kiến nghị giảm thuế, giảm lãi suất; tăng tỷ lệ sử dụng cầu cạn bê tông cốt thép đối...
(Xây dựng) – Sau một thời gian bị chặn đứng, những ngày gần đây tình trạng khai thác cát trái phép dọc sông Trà Khúc, đoạn chảy qua trung tâm thành phố Quảng Ngãi lại...
(Xây dựng) – Gần đây, UBND tỉnh đã ban hành Văn bản số 18702/UBND-CN gửi các Sở, ban, ngành… về việc tăng cường công tác quản lý khai thác khoáng sản cát, sỏi lòng sông...
(Xây dựng) - Quảng Ninh thừa đất thải mỏ thiếu đất san nền, đất thải mỏ chưa được sử dụng rộng rãi làm vật liệu xây dựng có nhiều nguyên nhân; trong đó, vướng mắc...
Nhà cấp 4 đẹp giá rẻ 300 triệu có 4 phòng ngủ với thiết kế đẹp mắt nhưng vẫn đảm bảo tối ưu công năng sử dụng là tìm kiếm hàng đầu của nhiều gia...
(Xây dựng) - Bộ Giao thông vận tải vừa có văn bản kiến nghị Thủ tướng Chính phủ nhằm tháo gỡ khó khăn, vướng mắc trong việc khai thác, cung ứng vật liệu cát cho...
(Xây dựng) - Giữa bối cảnh nhiều gia chủ thắt chặt ngân sách cho hạng mục sơn nhà, các chủ thầu và thợ sơn lâu năm trong nghề có một số bí quyết để tiết...
(Xây dựng) – Những năm qua, các DN thị trường sơn cạnh tranh vô cùng khốc liệt, nhằm chiếm lĩnh thị phần. Là một trong những DN đi đầu trong sản xuất sơn nước tại...
© 2023 Kiến Trúc Vinh